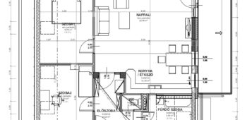
Nettó: |
74,75 m2 + 19,68 m2 |
| HELYISÉGLISTA | |
| Előtér: | 7,22 m2 |
| Fürdő: | 3,95(6,30) m2 |
| Konyha: | 12,35 m2 |
| WC: | 1,08m2 |
| Nappali: | 22,95 m2 |
| Szoba 1: | 9,78(14,51) m2 |
| Szoba 2: | 9,01(13,37) m2 |
| Szoba 3: | 8,41(11,03) m2 |
| Összesen/ Netto(Bruttó): | 74,75(88,81) m2 |
| Erkély: | 19,68 m2 |
Vételár: |
55 888 200,-Ft |








