Nettó: |
78,43 m2 + 13,53 m2 |
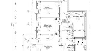
HELYISÉGLISTA | |
Közlekedő: | 10,76 m2 |
WC: | 1,26 m2 |
Fürdő: | 2,90 m2 |
Konyha – Étkező: | 9,76 m2 m2 |
Ügyféltér: | 20,97 m2 |
Tárgyaló: | 9,57 m2 |
Iroda1: | 9,36 m2 |
Iroda2: | 13,85 m2 |
Összesen/ Netto: | 78,43 m2 |
Terasz1: | 6,54 m2 |
Terasz2: | 6,99 m2 |
Vételár: |
40 041 650,-Ft |