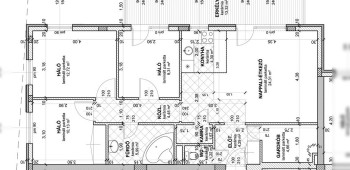
Nettó: |
82,25 m2 + 13,32 m2 |
| HELYISÉGLISTA | |
| Előtér: | 4,29 m2 |
| WC: | 1,22 m2 |
| Kamra: | 1,57 m2 |
| Gardrób: | 4,66 m2 |
| Közlekedő: | 4,45 m2 |
| Fürdő: | 5,99 m2 |
| Konyha: | 4,30 m2 |
| Nappali – Étkező: | 24,31 m2 |
| Háló1: | 10,13 m2 |
| Háló2: | 12,72 m2 |
| Háló3: | 9,31 m2 |
| Összesen/ Netto: | 82,95 m2 |
| Erkély: | 13,32 m2 |
Vételár: |
42 116 700,-Ft |






