Nettó: |
61,82 m2 + 4,72 m2 |
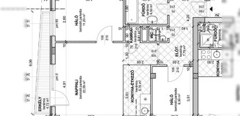
| HELYISÉGLISTA | |
| Előtér: | 7,79 m2 |
| WC: | 0,99 m2 |
| Kamra: | 0,81 m2 |
| Fürdő: | 4,50 m2 |
| Konyha – Étkező: | 5,78 m2 |
| Nappali: | 22,39 m2 |
| Háló1: | 8,36 m2 |
| Háló2: | 11,20 m2 |
| Összesen/ Netto: | 61,82 m2 |
| Erkély: | 4,72 m2 |
Vételár: |
28 239 200,-Ft |
Nettó: |
61,82 m2 + 4,72 m2 |
| HELYISÉGLISTA | |
| Előtér: | 7,79 m2 |
| WC: | 0,99 m2 |
| Kamra: | 0,81 m2 |
| Fürdő: | 4,50 m2 |
| Konyha – Étkező: | 5,78 m2 |
| Nappali: | 22,39 m2 |
| Háló1: | 8,36 m2 |
| Háló2: | 11,20 m2 |
| Összesen/ Netto: | 61,82 m2 |
| Erkély: | 4,72 m2 |
Vételár: |
28 239 200,-Ft |
Ez a weboldal sütiket használ, hogy a lehető legjobb felhasználói élményt nyújthassuk. A cookie-k információit tárolja a böngészőjében, és olyan funkciókat lát el, mint a felismerés, amikor visszatér a weboldalunkra, és segítjük a csapatunkat abban, hogy megértsék, hogy a weboldal mely részei érdekesek és hasznosak.
A feltétlenül szükséges sütiket mindig engedélyezni kell, hogy elmenthessük a beállításokat a sütik további kezeléséhez.
Amennyiben ez a süti nem kerül engedélyezésre, akkor nem tudjuk elmenteni a kiválasztott beállításokat, ami azt eredményezi, hogy minden egyes látogatás alkalmával ismételten el kell végezni a sütik engedélyezésének műveletét.