Nettó: |
27,89 m2 + 5,28 m2 |
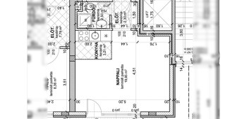
| HELYISÉGLISTA | |
| Előtér: | 2,30 m2 |
| Fürdő: | 2,53 m2 |
| Konyha: | 3,21 m2 |
| Nappali: | 19,85 m2 |
| Összesen/ Netto: | 27,89 m2 |
| Erkély: | 5,28 m2 |
Vételár: |
12 822 600,-Ft |
Nettó: |
27,89 m2 + 5,28 m2 |
| HELYISÉGLISTA | |
| Előtér: | 2,30 m2 |
| Fürdő: | 2,53 m2 |
| Konyha: | 3,21 m2 |
| Nappali: | 19,85 m2 |
| Összesen/ Netto: | 27,89 m2 |
| Erkély: | 5,28 m2 |
Vételár: |
12 822 600,-Ft |
Ez a weboldal sütiket használ, hogy a lehető legjobb felhasználói élményt nyújthassuk. A cookie-k információit tárolja a böngészőjében, és olyan funkciókat lát el, mint a felismerés, amikor visszatér a weboldalunkra, és segítjük a csapatunkat abban, hogy megértsék, hogy a weboldal mely részei érdekesek és hasznosak.
A feltétlenül szükséges sütiket mindig engedélyezni kell, hogy elmenthessük a beállításokat a sütik további kezeléséhez.
Amennyiben ez a süti nem kerül engedélyezésre, akkor nem tudjuk elmenteni a kiválasztott beállításokat, ami azt eredményezi, hogy minden egyes látogatás alkalmával ismételten el kell végezni a sütik engedélyezésének műveletét.