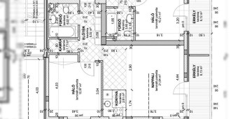
Nettó: |
48,57 m2 + 8,15 m2 |
HELYISÉGLISTA | |
Előtér: | 5,32 m2 |
Kamra: | 1,71 m2 |
Fürdő: | 4,02 m2 |
Konyha: | 2,61 m2 |
Nappali – Étkező: | 21,94 m2 |
Háló: | 12,97 m2 |
Összesen/ Netto: | 48,57 m2 |
Erkély: | 8,15 m2 |
Vételár: |
22 110 900,-Ft |
Nettó: |
48,57 m2 + 8,15 m2 |
HELYISÉGLISTA | |
Előtér: | 5,32 m2 |
Kamra: | 1,71 m2 |
Fürdő: | 4,02 m2 |
Konyha: | 2,61 m2 |
Nappali – Étkező: | 21,94 m2 |
Háló: | 12,97 m2 |
Összesen/ Netto: | 48,57 m2 |
Erkély: | 8,15 m2 |
Vételár: |
22 110 900,-Ft |
Ez a weboldal sütiket használ, hogy a lehető legjobb felhasználói élményt nyújthassuk. A cookie-k információit tárolja a böngészőjében, és olyan funkciókat lát el, mint a felismerés, amikor visszatér a weboldalunkra, és segítjük a csapatunkat abban, hogy megértsék, hogy a weboldal mely részei érdekesek és hasznosak.
A feltétlenül szükséges sütiket mindig engedélyezni kell, hogy elmenthessük a beállításokat a sütik további kezeléséhez.
Amennyiben ez a süti nem kerül engedélyezésre, akkor nem tudjuk elmenteni a kiválasztott beállításokat, ami azt eredményezi, hogy minden egyes látogatás alkalmával ismételten el kell végezni a sütik engedélyezésének műveletét.