ELADVA !

Nettó:

82,99 m2 + 13,32 m2

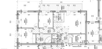
HELYISÉGLISTA
Előtér: 4,29 m2
WC: 1,22 m2
Kamra: 1,57 m2
Gardrób: 4,70 m2
Közlekedő: 4,45 m2
Fürdő: 5,99 m2
Konyha: 4,30 m2
Nappali – Étkező: 24,31 m2
Háló1: 10,13 m2
Háló2: 12,72 m2
Háló3: 9,31 m2
Összesen/ Netto: 82,99 m2
Erkély: 13,32 m2

Vételár:

41 687 250,-Ft

ELADVA !

AdatlapSzintalaprajz

Alaprajz (PDF)

1em-3-elado-ingatlan-energiatakarekos-lakas-zuglo

Elhelyezkedés

Képgaléria