Nettó: |
61,82 m2 + 4,72 m2 |
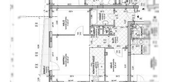
HELYISÉGLISTA | |
Előtér: | 7,79 m2 |
Fürdő: | 4,50 m2 |
WC: | 0,99 m2 |
Konyha – Étkező: | 578 m2 |
Nappali: | 22,39 m2 |
Háló1: | 8,36 m2 |
Háló2: | 11,20 m2 |
Összesen/ Netto: | 61,82 m2 |
Erkély: | 4,72 m2 |
Nettó: |
61,82 m2 + 4,72 m2 |
HELYISÉGLISTA | |
Előtér: | 7,79 m2 |
Fürdő: | 4,50 m2 |
WC: | 0,99 m2 |
Konyha – Étkező: | 578 m2 |
Nappali: | 22,39 m2 |
Háló1: | 8,36 m2 |
Háló2: | 11,20 m2 |
Összesen/ Netto: | 61,82 m2 |
Erkély: | 4,72 m2 |
Ez a weboldal sütiket használ, hogy a lehető legjobb felhasználói élményt nyújthassuk. A cookie-k információit tárolja a böngészőjében, és olyan funkciókat lát el, mint a felismerés, amikor visszatér a weboldalunkra, és segítjük a csapatunkat abban, hogy megértsék, hogy a weboldal mely részei érdekesek és hasznosak.
A feltétlenül szükséges sütiket mindig engedélyezni kell, hogy elmenthessük a beállításokat a sütik további kezeléséhez.
Amennyiben ez a süti nem kerül engedélyezésre, akkor nem tudjuk elmenteni a kiválasztott beállításokat, ami azt eredményezi, hogy minden egyes látogatás alkalmával ismételten el kell végezni a sütik engedélyezésének műveletét.